
【进料粒度】:5000-50000
【处理能力】:50-500
【应用领域】:脱水、脱泥、脱介,可用于砂石料厂水洗砂、选煤厂煤泥回收、选矿厂尾矿干排等
24小时咨询热线13333732048
五层高频脱水叠层筛是采用统一的振动源驱动多层筛箱共同振动的设备,是采用独立筛分系统的筛箱上下错落叠层布置,各层筛面独立完成给料、筛分作业,各层筛面的筛下物、筛上物分别汇集排出。
高频多层叠筛是吸收国外先进技术而消化研制开发的高效细粒物料分级设备。整机技术引进和消化国外先进的5叠层直线振动技术,振动幅度大、结构节省占地面积。两组筒形电动机配置产生的直线运动,悬挂式橡胶弹簧系统悬挂于外支撑架,振动力均匀、噪音小、负荷小、功耗低、环保。设备易磨损部位据采用了耐陶瓷、耐纳特胶板、聚氨酯等耐磨材料,延长了设备使用寿命,减少设备维修量。设备多采用快速装卡零部件实现了组装、备件更换时的便捷,方便了现场的操作。
五层高频脱水叠层筛主要特点:
1、采用多层筛箱叠加的结构设计,大大提高了振动筛的筛分面积,相当于多个普通筛机同事工作,大大提高了筛分的效率和处理量。
2、采用高质量、高开孔率、防堵耐磨聚氨酯筛网,采用专门的分矿器分流和给矿器的投料,使物料在保证大产量的前提下也能均匀的铺展于筛面,从而降低了矿浆由于 过快的流动速度对筛网的冲击,增加了筛网的使用寿命,平均寿命大于6个月。
3、配置能耗低。效率高,性能稳定可靠的意大利原装进口振动电机。电机安装使用美国螺纹防松技术,*松动,彻底保证振源的可靠性。
4、筛箱内部所有过浆部位都衬有高耐磨特制橡胶层,与箱体表面高强度结合,*脱落,有效避免流砂对筛箱的磨损。筛箱外部全部采用聚氨酯喷涂工艺,喷涂厚度达2-3mm,使筛箱的耐磨腐蚀程度大大提高,筛箱板材采用低合金高强度结构钢,制作采用数控切割 工艺,筛箱整体热处理消除应力,彻底避免筛箱二次变形,有效延长设备寿命。
5、多路并联,占用空间小。振动筛的5个筛框是叠加层的形式,相当于把5台筛机的张迪面积合并成一台筛机 的占地面积,使整个振动筛显得更加紧凑,对生产现场的安装增加了灵活性。
五层高频脱水叠层筛细筛是由两台运动方向相反的电振动器带动筛框做直线运动,两台电振动器作用到筛框上的合力通过筛框的重心。因此筛框上各点的激振力大小。矿浆从分矿器上部或下部给入,经分矿器均匀分成多路,再经给矿软管分别进入多个给矿器。给矿器把矿浆均匀地洒在筛面上端。筛面上的物料由于连续受到高频率小振幅的振动,在倾斜的筛面上做作连续的跳跃,使物料分散,细粒物料在调匀的过程中透过筛孔称为筛下产品,而大于筛孔的物料在倾斜的筛面上作连续的向前跳跃,最后跳出筛网成为筛上产品。
五层高频脱水叠层筛结构组成:

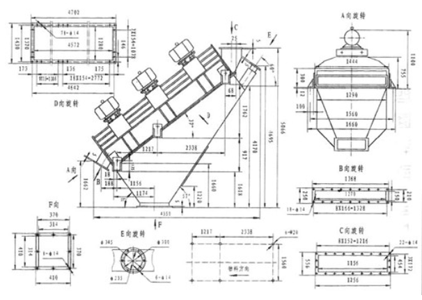
筛机主要由 1 、直线振动器 , 2 、上筛箱 , 3 、给料箱, 4 、固定机架 ,5 、下筛筐 6 、高频振动系统 7 、筛上料收集漏斗 8 、筛下料收集漏斗 9 、剪切弹簧等组成 。
五层高频脱水叠层筛型号参数表:
物料直线运行方形筛专家-奥创机械 网站备案:豫ICP备16037295号-13