彩色港彩全年历史图库,二四六天天彩9944cc66期,正版澳门足球报图库,跑狗论坛5043论坛网,二四六天天彩944CC,97709

当前位置:鹏威直线筛厂家 > 直线振动筛 > 脱水振动筛 > 正文

叠层筛

【进料粒度】:5000-50000

【处理能力】:50-500

【应用领域】:脱水、脱泥、脱介,可用于砂石料厂水洗砂、选煤厂煤泥回收、选矿厂尾矿干排等

电话

24小时咨询热线13333732048

产品介绍
叠层筛是使用统一的振动源来驱动多层筛箱一起振动的设备。 带有独立筛查系统的筛查箱错开并上下堆叠。 筛网的每一层均独立完成进料和筛分操作。 表面上的筛子和筛子分别收集和排放。

  高频多层筛是一种吸收国外先进技术开发的高效细粒度物料分级设备。 整机技术引进并消化了国外先进的五层线性振动技术,振动幅度大,节省占地面积。 由两组圆柱电动机的配置产生的线性运动,悬架橡胶弹簧系统悬架在外部支撑框架上,振动力均匀,噪音小,负荷小,功耗低,并且 这是环保的。 设备的耐磨部件由陶瓷,Nate橡胶板和聚氨酯等耐磨材料制成,可延长设备的使用寿命并减少设备的维护量。 该设备大多采用快速装配的零件,以实现组装和更换备用零件的便利,从而便于现场操作。

叠层筛

  工作原理:

  叠层的高频振动细筛由两个电动振动器驱动,它们的移动方向相反,以驱动筛框沿直线移动。 两个电动振动器在筛框上的合力穿过筛框的重心。 因此,屏幕框架上每个点的激励力。 矿石浆液从分矿器的上部或下部进料,由分矿器均匀地分成多个路径,然后通过矿软管进入多个进矿器。 将矿石浆均匀地撒在筛网的顶部。 屏幕表面的物料连续受到高频和小振幅振动,并在倾斜的屏幕表面连续跳动以分散物料。 细粒物料在混合过程中通过筛网,称为筛下产品。筛网产品大于筛下产品。带有筛孔的物料在倾斜的筛网表面上连续向前跳跃,最后从筛网中跳出。 成为屏幕上的产品。

叠层筛

叠层筛

  产品优势
  1.设备占地面积小,可以实现多通道并行连接。 所有筛框均采用叠加结构,扩展了原有的多通道进料原理。 将多个筛网的有效筛分面积合并到一个筛网的占地面积中,可以提高筛分的效率和产量,使整个设备更紧凑,并增加在生产现场的安装灵活性。
  2.筛框采用橡胶弹簧悬架支撑,噪音小,功耗低,设备的动态负荷小,对安装基础无特殊要求。
  3.使用高质量,高开孔率,抗粘连和耐磨的聚氨酯筛网,并使用特殊的矿石分配器和矿石进料器来迫使矿浆分配到矿井中,以便将物料 在保证大输出的前提下均匀分布在筛面上,从而减少了浆液因过快的流动速度对筛的影响,延长了筛的使用寿命,平均使用寿命超过6 几个月。
  4.设备表面经过防腐蚀,耐磨的喷胶处理。 筛箱的外部全部喷涂聚氨酯。 喷涂厚度为2-3mm,大大提高了筛箱的磨损和腐蚀程度。 筛箱板采用低合金高强度结构钢,采用数控切割技术制成,对筛箱进行整体热处理消除了应力,完全避免了筛箱的二次变形,有效增加了抗磨性。 设备的抗腐蚀和耐磨性,从而延长了设备的使用寿命。
  5,在生产过程中,对设备进行变频控制设计,可以有效控制筛分效率。

  6.叠层振动筛的振动部分为振动电该设备采用双振动器配置,能耗低,效率高。 电机装置采用螺纹防松技术,以确保振动源的可靠性而不松动。 另外,线性振动运动法使筛分物料的流动面积越长,传递速度越快,筛分能力和筛分效果就越大。

叠层筛

  主要特征:
  1.采用多层筛箱的叠加结构设计,大大增加了振动筛的筛分面积,相当于多台普通筛分机的工作,大大提高了筛分的效率和产量。
  2.采用优质,高开度,抗结块,耐磨的聚氨酯筛网,并采用专用的分矿器分流和进料矿石,使物料均匀分布在筛网下方。 在保证大产量的前提下,减少了因过快的流动速度而造成的浆料对筛子的冲击,延长了筛子的使用寿命,平均使用寿命超过6个月。
  3.配置具有低能耗。 意大利原装进口振动电机的高效,稳定,可靠的性能。 电机安装采用美国螺纹防松技术,以确保振动源的可靠性。
  4.筛箱内部的所有浆液部分均衬有高耐磨的特殊橡胶层,与箱体表面结合强度高,*脱落,有效避免了筛箱的磨损 由流沙。 筛箱外部全部采用聚氨酯喷涂工艺制成,喷涂厚度为2-3mm,大大提高了筛箱的耐磨性和耐腐蚀性。 筛箱板由低合金高强度结构钢制成。 生产采用数控切割技术。  ,完全避免了筛箱的二次变形,有效地延长了设备的使用寿命。
  5.多通道并联连接,占用空间小。 振动筛的五个筛框为叠加层的形式,相当于将五个筛的面积合并为一个筛,使整个振动筛更加紧凑,增加了生产场地的安装灵活性 性别。

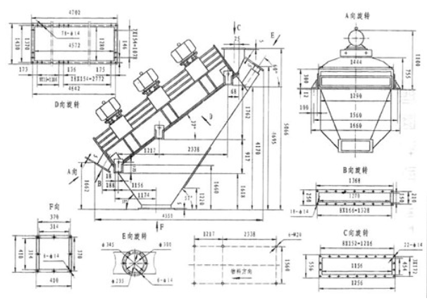
  结构组成:

叠层筛

  筛网机主要由1.直线振动器,2.上筛箱,3.进料箱,4.固定架,5.下筛篮6,高频振动系统7,筛上料斗8,和 下部筛网物料收集漏斗9,剪切弹簧等组成。

叠层筛型号参数表:

叠层筛

振动筛厂家家友情提示:请通过正规渠道购买振动筛配件,以保障您的合法权益!振动筛厂家请选河南奥创机械:http://www.goodcz.com/jxzxs/914.html  24小时服务热线:18937310551

销售热线:13333732048

ind_39.jpg在线咨询>>

扫一扫更亲近

联系我们

公司名称:河南奥创机械设备有限公司

全国统一销售热线:13333732048

地址:河南省新乡市环宇工业园区

物料直线运行方形筛专家-奥创机械 网站备案:豫ICP备16037295号-13

首页
在线咨询
电话咨询
主站蜘蛛池模板: 澳门正版资料2024年免费| l澳门资料,澳门资料库525656| 圣龙奇兵大冒险| 元龙第一季免费观看完整版高清| 机器人侵犯地球| 澳门二四六天天彩二四六| 新澳彩开奖结果2024开奖记录查询| 2024新奥历史开奖记录澳门 | 电视剧归路免费观看全集高清版| 澳门2022精准一码一肖一大小| 澳门精准免费资料何仙姑| 处女座男今日的运势最准| 黄大仙精准三肖三码必出一| 香港金吊桶精准一肯中特资料| 澳门黄大仙最准资料| 澳门资料库澳门图库在哪里| 6749港澳彩免费资料大全| 澳门王中王论坛开奖资料大全| 2023澳门资料免费公开| 双鱼座运势今日最准| 香港晚六会彩开奖结果下载| 香港最准六肖中特期期准100| 新澳门二四六天天开奖| 澳门一肖一码精准资料免费| 新澳2024年今晚精准一肖一码| 黎明决战电视剧全集免费观看完整版 | 2024年香港今期开奖结果查询| 奥门精准一肖| 澳门一肖一码开奖记录| 澳门一码一码100准确官方| 澳彩网官网资料下载| 菊次郎的夏天完整版钢琴曲| 新澳2024年今晚精准一肖一码| 澳门六合最快资料| 3d579开奖后历史开奖号| 新吃瓜网永久有效| 2024澳门资料正版全年免费| 四虎影院app下载| 7788dy电影网| 电视剧和你在一起在线观看| 生命之歌电视剧在线观看|