
侧振式矿用振动筛是激振源在上面的一种振动筛,也可以做成固液分离机,我们可以为客户提供电机转向说明书机及设备原理,为客户选择合适的侧振式矿用振动筛,先进的自同步振动原理,具有寿命长、噪声低、筛分效率高等特点,适用于烧结矿、自然矿、焦炭及其它粉状物料的一种振动筛分设备。
侧振式矿用振动筛原理:
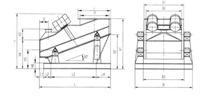
侧振式矿用振动筛采用双振动电机驱动,当两台振动电机做同步、反缶旋转时,其偏心块所产生的激振力在平行于电机轴线的方向相互抵消,在垂直于电机轴的方向叠为一合力,因此筛机的运动轨迹为一直线。其两电机轴相对筛面有一倾角,在激振力和物料自重力的合力作用下,物料在筛面上被抛起跳跃式向前作直线运动,从而达到对物料进行筛选和分级的目的。

侧振式矿用振动筛优势:
设备可用于流水线中实现自动化作业,具有能耗低、效率高、结构简单、易维修、全封闭结构无粉尘溢散的特点,很受消费者青睐,设备的筛分目数不大于400目,可筛分出7种不同粒度的物料,整体除筛网外几乎无易损件,运行成本低。

振动电机采用高性能、高寿命的TZDC系列振动电机为激振源,调节振动电机激振力的大小,可以改变筛机的振动幅。减振系统由橡胶弹簧和卡箍、支承座等组成。底架由料仓及底盘等组成。本系列振动筛的振动电机安装方式可分为上振式和下振式,减振器安装方式可分为座式或吊挂式。还可以根据用户需要进行设计制造。
侧振式矿用振动筛技术参数表:
针对振动电机选型来说,要根据不同的振动设备型号,选定对应的振动电机型号,如果振动电机选型过小的话,就不能达到较大的激振力,起不到对应的筛分效果,如果振动电机选型过大的话,就会造成对振动筛设备的破坏。
振动筛厂家家友情提示:请通过正规渠道购买振动筛配件,以保障您的合法权益!振动筛厂家请选河南奥创机械:http://www.goodcz.com/zhixianshai/ 24小时服务热线:18937310551
物料直线运行方形筛专家-奥创机械 网站备案:豫ICP备16037295号-13