彩色港彩全年历史图库,二四六天天彩9944cc66期,正版澳门足球报图库,跑狗论坛5043论坛网,二四六天天彩944CC,97709

当前位置:鹏威直线筛厂家 > 直线振动筛 > 矿用振动筛 > 正文

交叉滚轴筛分机

【进料粒度】:5000-50000

【处理能力】:50-500

【应用领域】:石英砂、压裂砂、玻璃砂、矿石、合金粉、焊条粉末、

电话

24小时咨询热线13333732048

产品介绍
设备工作原理:

交叉滚轴筛分机充分研究剖析传统筛分设备出现粘、堵、卡、筛分效率低、故障率高的问题根源,在于“静筛孔”的筛分方式和机械强度问题。交叉筛摒弃传统筛分模式,创造性采用“物料自清理”、“动态筛孔”的筛分机理,通过对各种物料各种湿度、粘度、各种粒级分级现场使用证实,交叉筛解决了物料筛分行业难题,成为新一代高效筛分设备。

交叉滚轴筛分机

交叉滚轴筛分机产品特点:
1)筛轴由辊道电机单轴驱动,便于维修;
2)入料端筛轴倾斜安装,可快速分离物料,筛分效率高;
3)两筛轴上的筛片相交,减小了相邻筛轴形成的死角,避免了卡筛;
4)设有旁路,配有电动推杆,手动操作换向机构,不需要筛分时,直接经旁侧路过,便利设备检修和清理;
5)旁路换向板采用栏栅结构,当物料落到换向板时部分颗粒首先得到筛分,有利地提高了筛分效率;
6)箱体两侧板面设计活动插板结构,当需要更换检修筛轴、筛片、防腐衬板时非常方便;

7)设有堵煤报警和电气控制安全?;?,避免异常运行造成设备损坏。

交叉滚轴筛分机

交叉滚轴筛分机

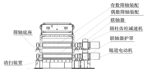
交叉滚轴筛分机结构组成:

交叉滚轴筛分机

交叉滚轴筛分机是由机体、机盖、筛轴、进煤斗、出口罩壳和控制柜六大部分组成。
1、机体部分
机体为焊接件,所有筛轴总成通过联结螺栓固定在机体,机体侧面装有衬板。
2、机盖部分
机盖为焊接件,机盖起密封作用,机盖上面设有检修门,前、后跟进煤斗和出口罩壳联结。
3、筛轴总成部分
筛轴总成由辊道电机(含减速机)、筛轴、筛片、平键、锁紧螺母、联轴器、轴承座及轴承座附件组成,辊道电机(含减速机)与筛轴通过联轴器直联。
4、进煤斗部分
带旁路的进煤斗为焊接件,内设挡板,挡板通过电动推杆执行器推动,限位翻转,进煤斗内装有衬板。
5、出口罩壳部分
出口罩壳为焊接件,出口罩壳起密封作用,出口罩壳上面设有检修门。

交叉滚轴筛分机

交叉滚轴筛分机

交叉滚轴筛分机使用范围:
1、滚轴筛分机适用于燃煤火力发电输煤系统和煤矿选煤系统,对煤炭粒度进行箱分。
2、滚轴筛分机适合对松散度为05--- 2.5t/m3、 粒度0 -200mm的各种粒状、粉状等散状物料进行筛分,如水泥原料、铁矿石等。
3、滚轴筛分机对煤质较差、煤中含用木块,石块及软性杂物的煤种,有极强的适应能力。

交叉滚轴筛分机型号参数表:

交叉滚轴筛分机

滚轴筛安装要求:
有关设备安装的更多信息,请参见特定设备的一般安装图。
根据工艺安排的要求,将电动机的固定位置分为两种类型,并通过以原料的流动方向为参考确定左右安装位置。
安装前,请根据设备基本图的要求设置预埋件,并检查预埋件的高度。滚筒筛的运输方式由整机运输。将设备安装到位后,应使用密封胶密封底座和地面之间的间隙,以防止粉末泄漏。

为避免由于缺少消耗品而导致滚筒筛无法正常工作,应在工作场所存放足够数量的消耗品,例如筛网和弹性柱销

振动筛厂家家友情提示:请通过正规渠道购买振动筛配件,以保障您的合法权益!振动筛厂家请选河南奥创机械: http://www.goodcz.com/zxts/994.html24小时服务热线:18937310551

销售热线:13333732048

ind_39.jpg在线咨询>>

扫一扫更亲近

联系我们

公司名称:河南奥创机械设备有限公司

全国统一销售热线:13333732048

地址:河南省新乡市环宇工业园区

物料直线运行方形筛专家-奥创机械 网站备案:豫ICP备16037295号-13

首页
在线咨询
电话咨询
主站蜘蛛池模板: 2021年是澳门正版资料大全| 澳门资料澳门资料库澳门资料| 电影韩国课中坏事| 天天影视网色| 港澳宝典正版资料下载新澳门| 2024澳门跑狗图最新版今天| 2023澳门六今晚开奖结果出来,生财有道| 澳门123656.com开奖| 大三巴澳门31888con| 2020年大片排行榜前十名电影| 奥门今天晚上开什么号码| 免费追剧不卡顿软件| 成人用品店是干嘛的| 月歌行电视剧全集免费观看完整版| 澳门澳门开奖结果+开奖记录2022年今晚| 咒怨(录象带版)| 六姐妹电视剧在线观看全集免费高清 | 2024澳门新资料大全免费新| 澳彩开奖结果开奖结果| 体育赛事频道节目单| 星辰影院电影在线观看完整免费| 澳门开彩开奖+结果2023澳门香港香| 二五生肖有绿头,单单双双任君选是什么生肖 | 新澳门开奖结果2023开奖记录查询表格下载| 2021澳门精准开奖资料| 爱上电影网郭玮| 2023澳门正版资料免费更新| 澳门123免费资料大全| 2019香港正版资料| 新澳门出彩走势| 2023年澳门正版资料大全123| 澳门刘伯温精准资料大全| 巴德尔和迈因霍夫| 新澳门2024年免费咨料| 正版港彩图库| 澳门四不像玄机| 天天彩开什么生肖啊| 新澳门开奖记录查询今天2024年| 澳门一肖一码必中一肖期期精准| 韩国情人电影| 澳门第45期开奖记录|